2.5-Zimmer-Wohnung / klein - fein - mit Zentrumnähe

Leben in einer der attraktivsten Gemeinden am Zürichsee– jedoch im Kanton Schwyz.

Im Oberdorf von Lachen SZ, am Dorfrand gelegen, mit der Nähe zum Bahnhof und Zentrum und dem Hafen-Lachen in Fussdistanz– ideal für einen Abendspaziergang oder gemütliche Stunden am Wasser.

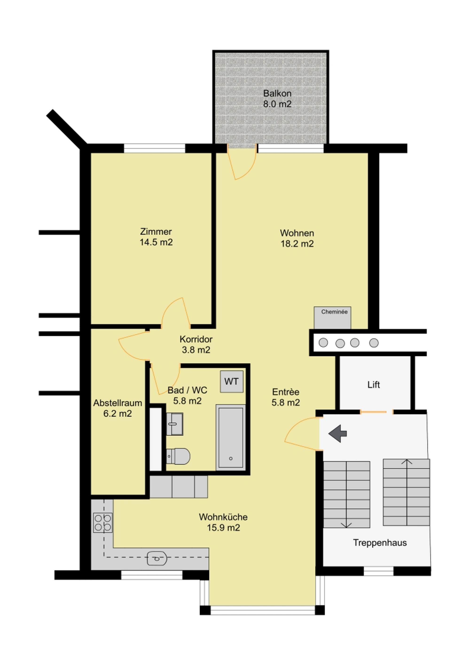
Schmucke 2.5 Zimmer-Wohnung mit grosszügiger Wohnküche und separatem Wohnraum mit Cheminée. Auch das Schlafzimmer erstreckt sich in einer guten Grösse und im Badezimmer mit Badewanne/WC/Waschtisch mit einem Waschturm lässt es sich gut Waschen.

Vom östlich ausgerichteten Balkon erhält man einen Weitblick bis zum Säntis und das Reduit bietet viel Platz für Stauraum.

Der grosse Tiefgaragenplatz (3.0 x 6.2 m) und der Keller mit 6.6 m² runden dieses Angebot ab.

  • Wohnfläche ca. 64.6 m²

  • Wohnraumzimmer mit Cheminée

  • Offene Wohnküche

  • Grosszügiges Schlafzimmer 14.6 m²

  • Badezimmer mit Badewanne/WC/Waschtisch und Waschturm

  • Balkon mit östlicher Ausrichtung

  • Korridor mit Nische für Garderobe

  • 1 grosser Tiefgaragenplatz (zusätzlich CHF 45'000.-)

  • 1 Keller

  • Allgemeiner Trocknungsraum

  • Allgemeiner Fahrradraum

  • Lift im Treppenhaus

  • Bahnhof Lachen 600 m

  • Zentrum Lachen 850 m

  • Hafen-Lachen 1'000 m

Richtpreis Wohnung CHF 740'000.-

Richtpreis TGP CHF 45'000.-

RICHTPREIS TOTAL CHF 785'000.-

Habe ich mit dieser Immobilie Ihr Interesse geweckt!
Ich freue mich auf Ihre Kontaktaufnahme und beantworte gerne Ihre Fragen.